A Lugao által gyártott GW13 szakaszolókapcsoló nullapont földelés védelmi eszközt úgy tervezték, hogy megvédje a transzformátor nullapontjának szigetelését a villám túlfeszültségtől, a kapcsolási túlfeszültségtől és a teljesítményfrekvenciás (tranziens) túlfeszültségtől. A Lugao professzionális gyártóberendezésekkel és gazdag exporttapasztalattal rendelkezik, és a tárolt készlet gyorsan szállítható.
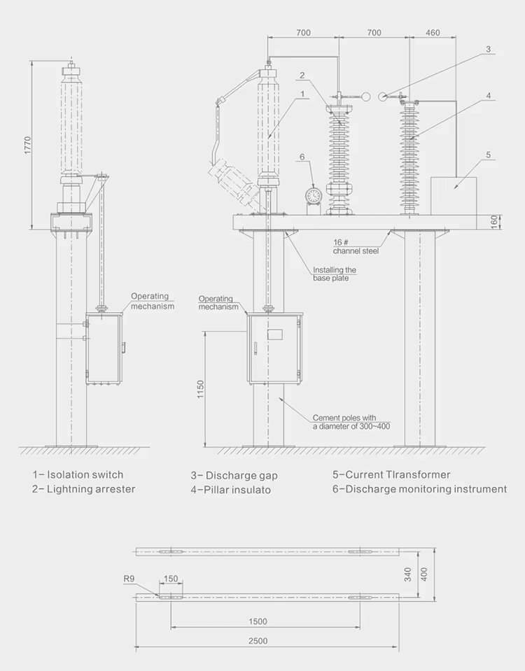
A Lugao GW13 szakaszolókapcsolója nullapont földelés védelmi eszközöket elsősorban a 110 kV-os és 220 kV-os teljesítménytranszformátorok nullapontos áramköreiben használják. Megvédik a transzformátor nullapont szigetelését a túlfeszültség okozta károktól, és lehetővé teszik a transzformátor számára a földelt és a földeletlen nullapont üzemmód közötti váltást. Ha egyidejű villámlás elleni védelemre, tápfrekvenciára és kapcsolási túlfeszültségekre van szükség, a védelem érdekében párhuzamosan rés és levezető csatlakoztatható. A GW13 sorozatú nullapontos túlfeszültségvédő egy komplett készlet, amely egy szakaszolót, cink-oxid-levezetőt, kisülési rést és áramváltót tartalmaz. Nagy hőkapacitással és kiváló védelemmel, rugalmas konfigurációkkal és egyszerű használattal rendelkezik. A felhasználói igényeknek megfelelően választható a tiszta rés kialakítás vagy a szakaszoló és a nyomórés kombinációja.
GW13 védelem Készülék műszaki specifikációi
| ltem |
Egység |
Érv |
||
| Termékmodell |
|
Lugao-GW13-110 |
Lugao-GW13-220 |
|
| Névleges feszültség |
KV |
110 | 220 | |
| A transzformátor semleges feszültségállósága |
Villámteli és vágásálló feszültség (csúcs) |
KV |
250 | 400 |
| 1 perc teljesítményfrekvencia (effektív érték) |
KV |
95 | 200 | |
| Semleges leválasztó kapcsoló |
Névleges áram |
A | 630 | 630 |
| Működési mechanizmus |
|
CS14G (kézi) vagy CJ2 (elektromos) |
||
| Cink-oxid levezető |
Névleges feszültség (RMS) |
KV |
72 | 144 |
| Folyamatos üzemi feszültség |
KV |
58 | 116 | |
| DC 1mA referencia feszültség |
KV |
103 | 205 | |
| Villámimpulzusáram maradékfeszültsége |
KV |
186 | 320 | |
| Kisülési rés |
Rézelektródák távolsági tartománya |
mm | 90-150 | 220-320 |
| Teljesítmény-frekvencia kisülési feszültség tartomány |
KV |
50-83 | 100-166 | |
| 1,2/50us impulzus kisülési feszültség |
KV |
120-190 | 250-320 | |
| Áramváltó |
Írja be |
|
Epoxigyanta öntött teljesen zárt pillér típusú 10kv |
|
| Átalakítási arány |
|
100/5200/5300/5.40015.50015.600/5 |
||
